泡沫消防車作為水罐消防車的補充車型,其滅火效果比水罐消防車滅火效果更廣,那么泡沫消防車上配置的泡沫炮是怎么樣分類的呢?
泡沫消防車消防炮的分類
泡沫消防車一般配置兩用消防車,用字母PL代表,兩用炮是按照口徑的大小來分類,一般有以下幾類:PL24、PL32、PL48最常用的幾種。
兩用炮的圖解
1.PL24型消防炮圖解
PL24型消防炮圖解
PL24型消防炮圖解
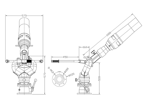
2.PL32型消防炮圖解
PL32型消防炮圖解

PL32型消防炮圖解
3.PL48消防炮圖解
PL48型消防炮圖解
PL48型消防炮圖解
更多兩用消防炮的詳細參數歡迎來電咨詢:152-7133-5277.
相關評論
來自<蘇州市>的朋友
消防車用了3個月,泵有點漏水,廠家派技術人員上門維修,服務一流
來自<泉州市>的朋友
消防車用了3個月,車子已經上牌了,購買的時候擔心上牌有問題,廠家協助我們上牌,車子上牌非常順利。
來自<張家界市>的朋友
國六消防車的比國五消防車貴了不少,國五能上牌的地區抓緊時間,可以省很多錢。
來自<常德市>的朋友
我們風景區在貴公司采購一臺小型水罐消防車,加裝了一套灑水功能,平時灑灑水,非常實用。
來自<廣州市>的朋友
2021年7月1號之后,全國將執行機動車國六B階段排放標準,國五的車子不能上牌了,所以提前購買了國五的消防車,價格要比國六的便宜好幾萬。
來自<孝感市>的朋友
泡沫消防車發泡效果真是好,大了一車水,整個場地全是泡沫,有30里面厚,像下雪一樣。
來自<張家界>的朋友
泡沫消防車,泡沫罐采用不銹鋼材質,耐腐蝕特別好,車上的配件都是質量很好的,服務態度非常好,銷售很細心很耐心。
來自<臨沂市>的朋友
價格便宜,質量好,售后及時,五星好評
來自<懷化市>的朋友
不買貴的,只買對的,廠家推薦的消防車車型,節省了很大一筆成本。
來自<溫州市>的朋友
公司技術力量雄厚、生產工藝成熟、生產經驗豐富、檢測設備齊全。